本次為創意園區辦公室裝修設計效果圖,設計師在辦公室設計中,采用半透明的聚碳酸酯面板和彩色的密度板,打造一個明亮靈活的辦公空間,屋頂的大天窗,爭取自然光最大限度的滲透。
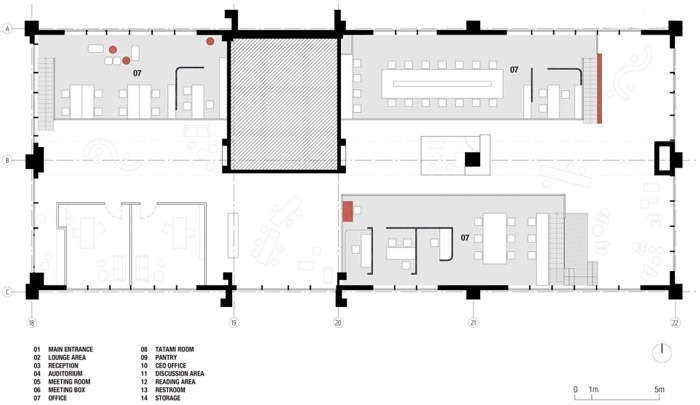
▼辦公室一層平面圖

▼辦公室夾層平面圖

▼辦公室剖面圖

▼辦公室入口前臺

▼辦公室接待區

▼辦公室接待區

▼辦公室樓梯

▼辦公室走道

▼辦公室交流區

▼辦公室交流區

▼辦公室討論區

▼辦公室會議室

▼辦公室私人會議室

▼辦公室夾層辦公區

▼辦公室夾層辦公區

▼辦公室茶水間

▼辦公室茶水間

▼辦公室茶水間

本次創意園區辦公室裝修設計效果圖講解到此結束,設計師在辦公室設計中,采用半透明的聚碳酸酯面板和彩色的密度板,打造一個明亮靈活的辦公空間。